• ambiente
Puntiamo a integrare architettura e ambiente, facilitando l'interazione tra natura e costruito.
Preferiamo soluzioni che rispettano e valorizzano il contesto, creando spazi sostenibili che migliorano la relazione tra uomo e natura.
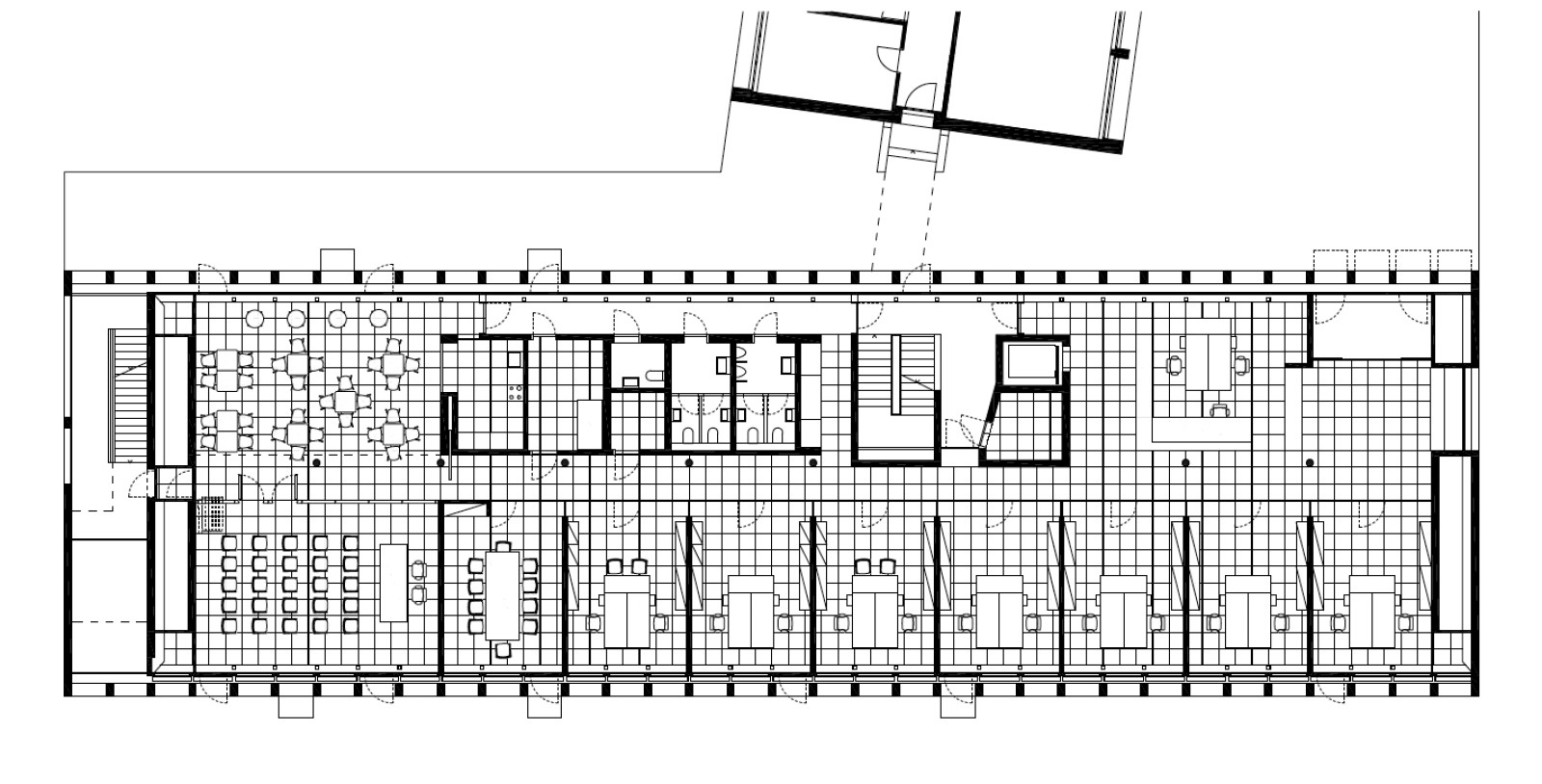
AET - Azienda Elettrica Ticinese
Monte Carasso Canton Ticino CH
Nuovo edificio per ufficio e comparto energetico 2010 - 2015
Morazzone
Casa per singola famiglia ad alta efficienza energetica con struttura in legno e isolazioni in paglia, 2023, cantiere in corso
