• confort
Garantiamo spazi confortevoli e funzionali, con soluzioni low-tech che valorizzano le competenze locali e l’identità del luogo.
Riduciamo la complessità, semplifichiamo la manutenzione ed effettuiamo un isolamento avanzato per migliorare l’efficienza energetica degli ambienti, assumendoci la responsabilità professionale di tutelare il contesto.
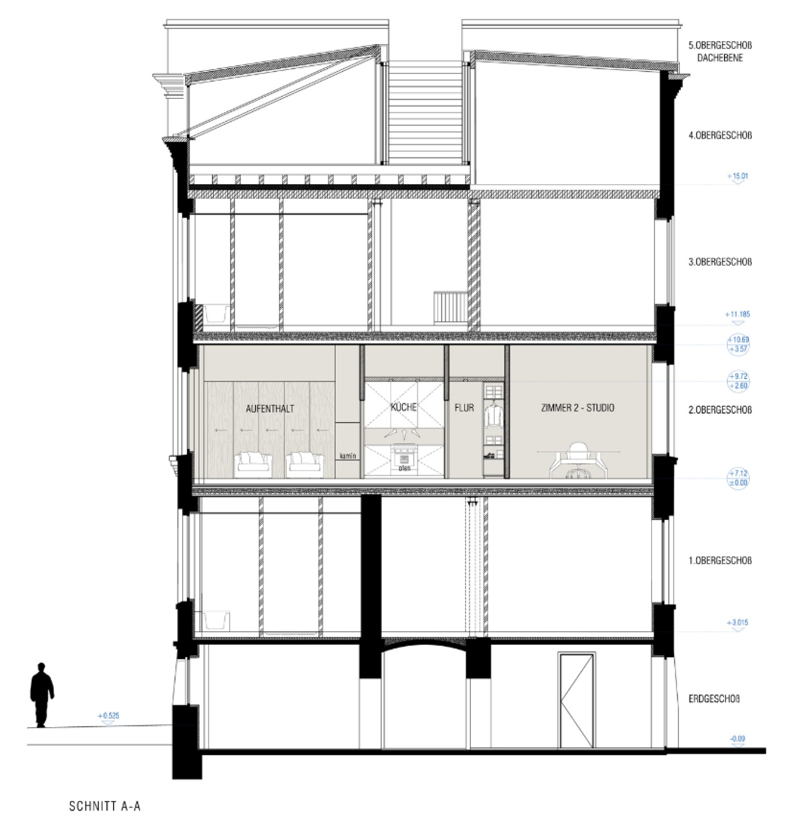
Berlino
Haus Manheimer, Schohauser Alle 22 Arch. C. Schwatlo. Ristrutturazione di un appartamento tipo loft in un grande edificio berlinese costruito tra il 1883 e il 1887 poi convertito in residenze nel 2013-2014
