FFA_studio_office
EdenAdmin
Instagram
ITEN
 save-energy

Esploriamo tecniche efficaci di isolamento che migliorino lo spazio costruito.
La protezione energetica dell’ambiente è oggi una responsabilità professionale imprescindibile.

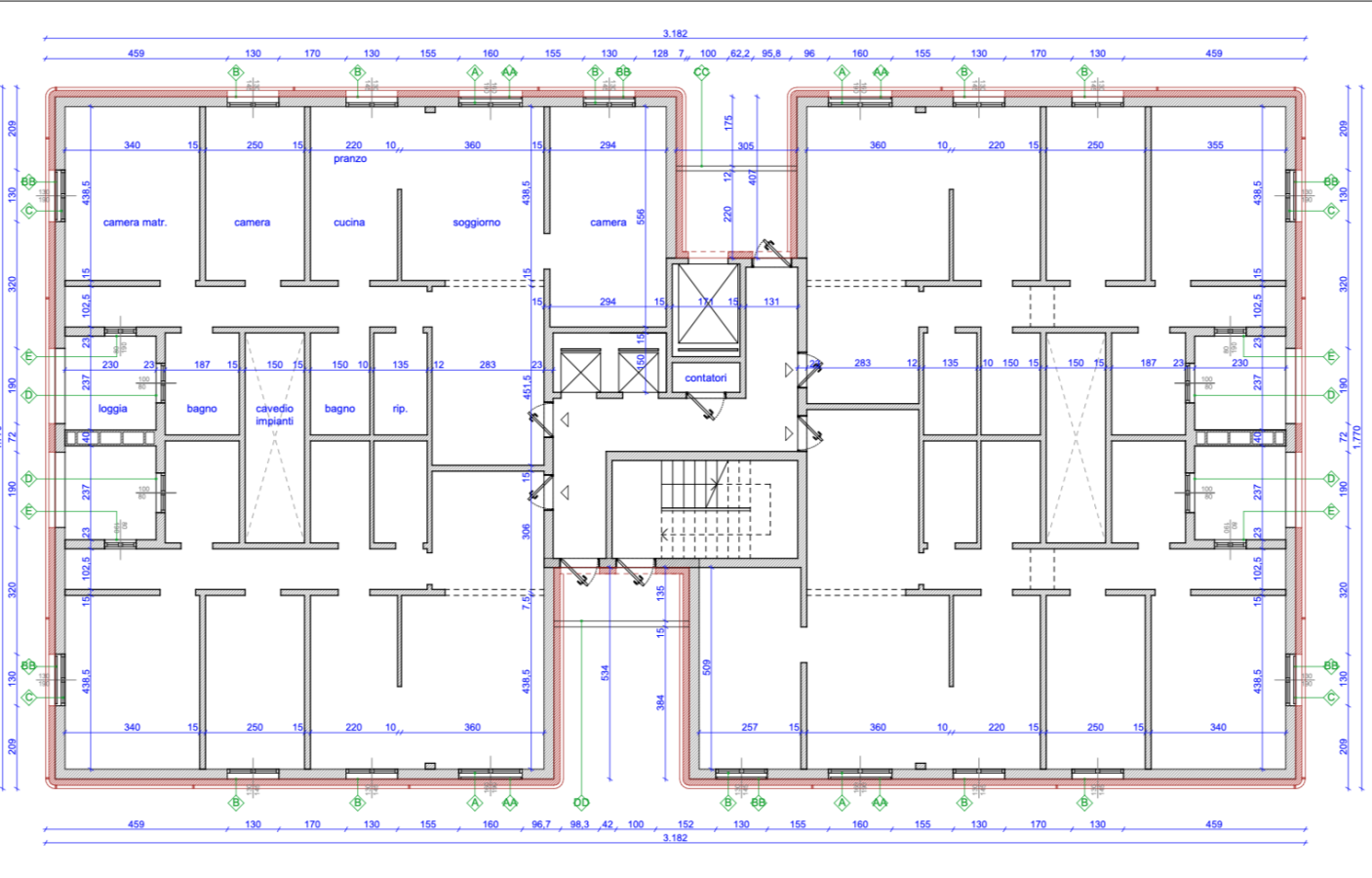
Monterosa 51

Progetto di restauro e riqualificazione energetica di un edificio moderno costruito dagli architetti Vito e Gustavo Latis, 1956 - 2022 (ristrutturazione di I livello)

CPS

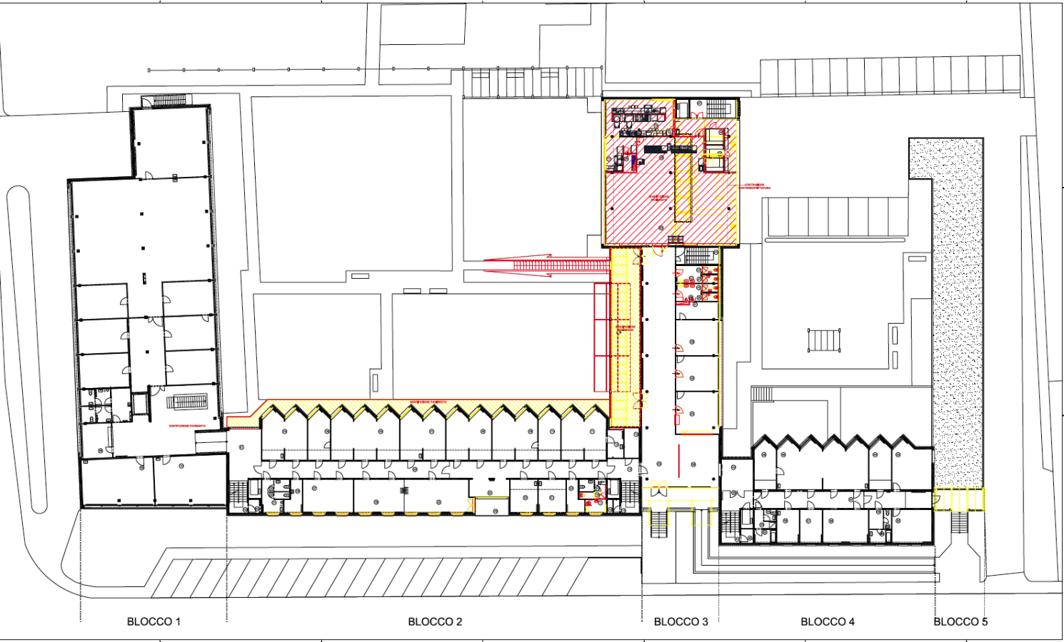
Ristrutturazione e riqualificazione energetica di un grande complesso scolastico ubicato in Canton Ticino nel paese di Giubiasco alle porte di Bellinzona, 2007-2010

Ca' Granda

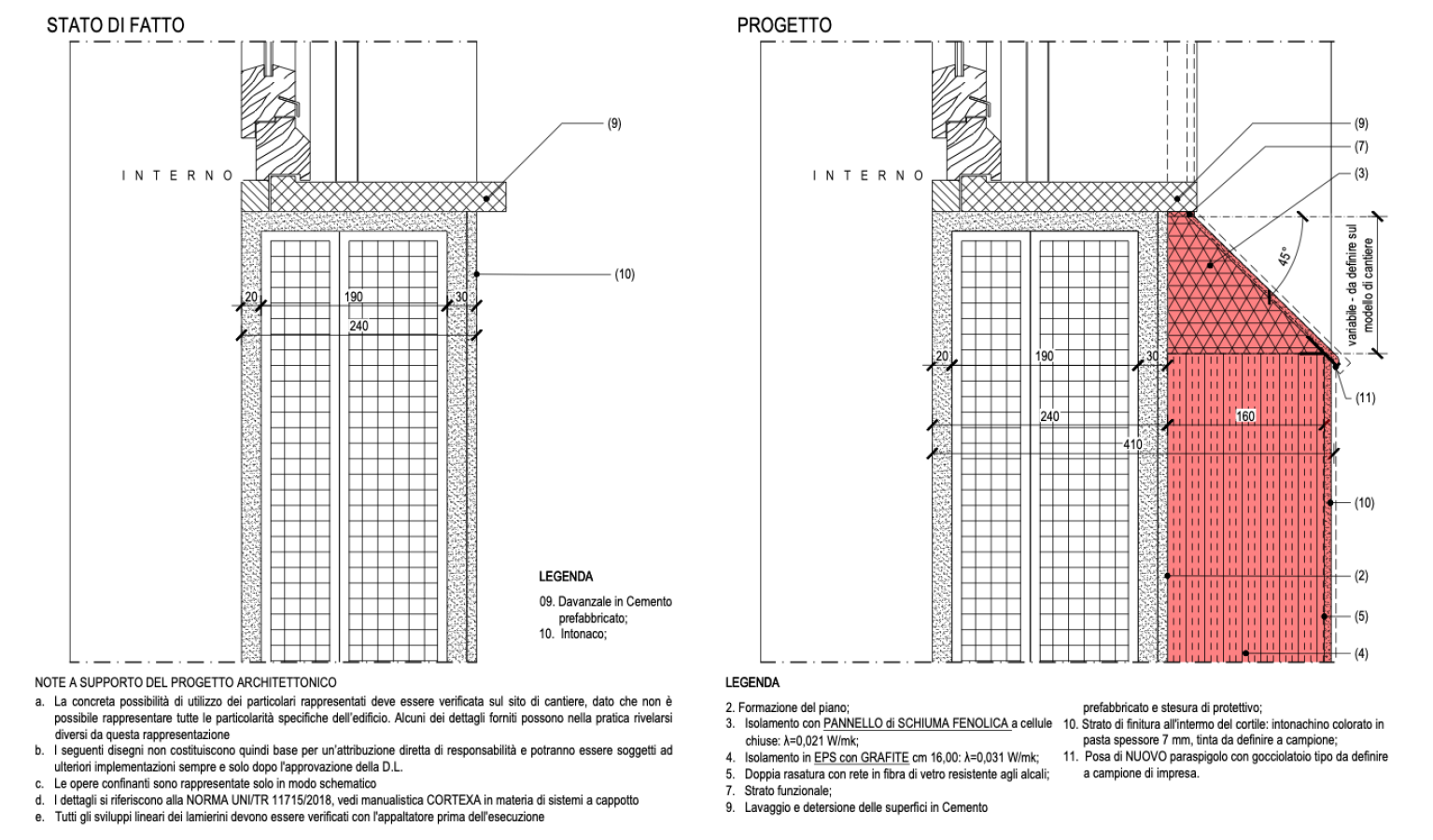
Progetto di riqualificazione energetica di un complesso di edilizia popolare ubicato nella città di Milano, 2022

<